分享好友
模型图纸首页
模型图纸分类
切换频道
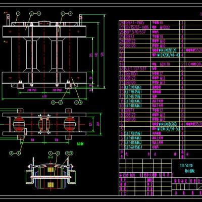
S11-M-50/10变压器+铁心片(AutoCAD-ZWCAD设计,dwg格式)
2024-10-07 13:54
241
94下载
hangting
加关注
0
没有留下签名~~
文件类型:压缩文件
文件大小:184.93K
S11-M-50/10变压器装配图.dwg
S11-50/10铁心片装配图.dwg
请
登录
或
注册
后查看详情
点赞
0
举报
收藏
0
打赏
0
评论
0
分享
9