文件大小:470.72K
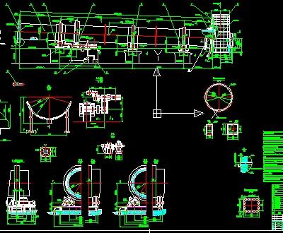
4.3x62m回转窑(川矿)图纸 回转窑是指旋转煅烧窑(俗称旋窑),属于建材设备类。回转窑按处理物料不同可分为水泥窑、冶金化工窑和石灰窑。
4.3x62m回转窑(川矿)图纸 回转窑是指旋转煅烧窑(俗称旋窑),属于建材设备类。回转窑按处理物料不同可分为水泥窑、冶金化工窑和石灰窑。
85下载420浏览1.56M
66下载260浏览4.22M
63下载180浏览47.95M
82下载294浏览4.03M
100下载285浏览381.71K
20下载316浏览658.33K
40下载222浏览1.87M
31下载281浏览1.47M
96下载316浏览32.7M
13下载154浏览289.59K