文件大小:22.74M
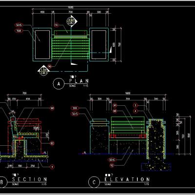
100种园凳树池CAD图纸,有详细的施工图和设计图,适合于园林景观设计和施工。
100种园凳树池CAD图纸,有详细的施工图和设计图,适合于园林景观设计和施工。
49下载303浏览3.94M
85下载171浏览6.28M
33下载294浏览7.85M
32下载282浏览740.09K
29下载307浏览383.24K
57下载335浏览507.72K
25下载261浏览5.46M
71下载278浏览212.37K
39下载277浏览20.62M
22下载344浏览81.57K