文件大小:1.22M
2层别墅建筑设计及效果图。
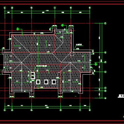
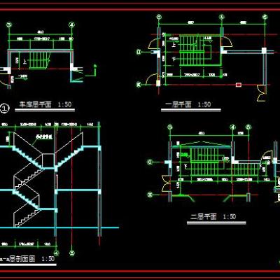
别墅共分地下一层、地上两层,总建筑面积约480平。地下一层设有视听室、棋牌室、储藏室、工作室、佣人房。一层设有车库、门厅、客房、家庭室、厨房、餐厅、会客厅。二层设有主卧、次卧、休息室、卧室、卫生间、衣帽间。
2层别墅建筑设计及效果图-480平9张CAD图1张效果图全套图纸包括地下一层平面图、首层平面图、二层平面图、屋顶平面图、立面图、剖面图、楼梯大样图、门窗表、门窗详图、节点图等共计9张CAD图以及一张室外效果图。









