文件大小:495.57K
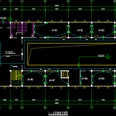
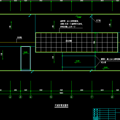
某办公楼电气照明设计图 图纸包括 各层插座平面图 电照平面图 照明电缆走向示意图 照明配电系统图 防雷接地装置 设计说明 图纸目录及图例 也算比较完整的一套图纸
某办公楼电气照明设计图 图纸包括 各层插座平面图 电照平面图 照明电缆走向示意图 照明配电系统图 防雷接地装置 设计说明 图纸目录及图例 也算比较完整的一套图纸
87下载144浏览44.6M
98下载280浏览2.34M
47下载280浏览3.34M
2下载298浏览998.76K
89下载220浏览19.5M
36下载196浏览34.9M
78下载201浏览6.56M
4下载242浏览6.85M
39下载184浏览1.16M
47下载165浏览3.82M