文件大小:0.98M
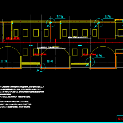
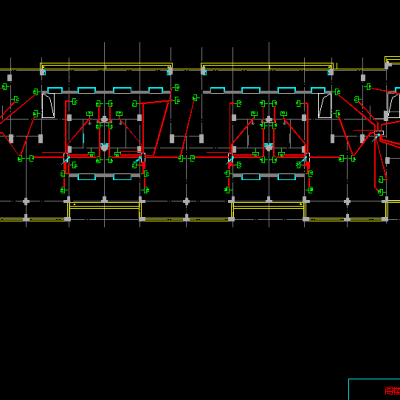
本图纸是六层住宅楼电气照明的布线图 图纸包括 各层平面照明布置图 插座布置图 强弱电布置图以及 屋顶防雷接地图 图纸内容比较全面详细 有不错的借鉴意义
本图纸是六层住宅楼电气照明的布线图 图纸包括 各层平面照明布置图 插座布置图 强弱电布置图以及 屋顶防雷接地图 图纸内容比较全面详细 有不错的借鉴意义
9下载167浏览1.77M
71下载182浏览2.07M
53下载343浏览861.91K
10下载250浏览687.18K
71下载270浏览19M
66下载238浏览48.1M
59下载215浏览44.8M
34下载246浏览86.5M
83下载152浏览403.4K
99下载233浏览44.8M