文件大小:1.42M
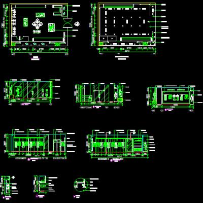
五套服装专卖店设计方案80-260平38张CAD图
五套服装专卖店设计方案,面积由80平-260平不等。图纸包括平面布置图、天花图、立面图、剖面图、大样图等共计38张CAD图。每种方案都可独立用作课程设计。









