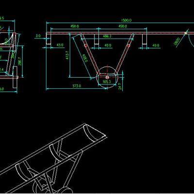
气瓶运输小车
2下载109浏览21.3M
84下载185浏览5.88M
32下载231浏览35.9M
67下载246浏览45.6M
88下载240浏览18.7M
73下载223浏览14.3M
92下载306浏览147M
85下载233浏览14.6M
100下载257浏览19.1M
82下载119浏览50.15K