分享好友 中模头条首页 中模头条分类 切换频道

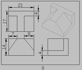
AutoCAD二维图形三视图的练习

2017-01-02 15:4218460互联网

AutoCAD二维图形三视图的练习 作者:心虹

适合初学者。

以下是三维实体

 


 

 

 

 

 

 

 

 

 

 

 

 

 

 

 

 

 

 

 

 

 


举报
收藏 0
打赏 0
评论 0
AutoCad时间查询
在AutoCAD系统中,调用time命令可以在文本窗口显示关于图形的日期和时间的统计信息,如当前时间、图形的创建时间等。该命令使用

0评论2018-11-09377

CAD作图经验分享
1.将L画的线变成PL的 用pe(pedit)命令,编辑多段线,其中有合并(J)选项能用多段线(PLINE)作图就不要用直线(LINE),因为多段线

0评论2018-11-09411

CAD块名称不能使用rename进行修改怎么办
1、问题描述使用rename命令,想对一些块名称进行修改,发现大部分可以成功修改,但对于15#类的块无法进行修改,程序出现指定的旧

0评论2018-11-09666

AutoCAD使用命令与系统变量
本教程专门为刚接触cad的同学介绍AutoCAD使用命令与系统变量,下面我们就一起来看看吧。  在 AutoCAD 中,菜单命令、工具按钮

0评论2018-11-09298