文件大小:3.14M
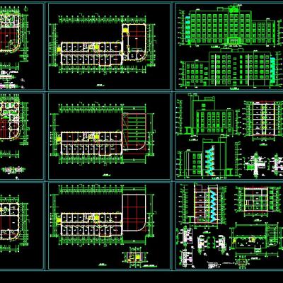
长56米 宽30.8米 六层检察院办公楼设计图 含详图
长56米 宽30.8米 六层检察院办公楼设计图 含详图
33下载344浏览385.92K
71下载180浏览69.52K
13下载259浏览381.83K
93下载356浏览2.28M
83下载127浏览1018.87K
92下载340浏览5.41M
72下载316浏览2.07M
25下载261浏览12.76M
100下载323浏览1.36M
48下载332浏览1.75M