一. 图纸幅面
㈠ 图纸幅面
绘制机械图样时,优先采用5种规定的图纸基本幅面,分别是:A0、A1、A2、A3、A4。必要时,也允许选用所规定的加长幅面。加长幅面的尺寸由基本幅面的短边成整数倍增加后得出。
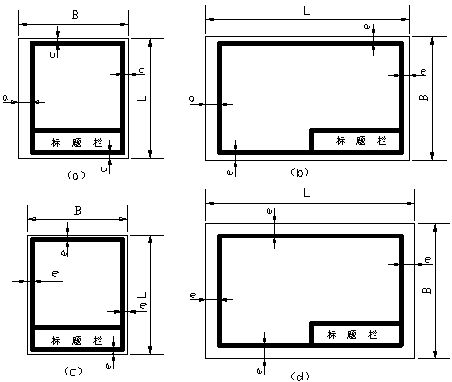
㈡ 图框格式
在图纸上,图框线必须用粗实线画出,其格式分为不留装订边和留有装订边两种,见机械制图手册,但同一产品的图样只能采用一种格式。
㈢ 标题栏
gb/t10609.1-89对标题栏的内容、格式和尺寸作了规定,标题栏的文字方向应为看图方向,标题栏的外框为粗实线,里边是细实线,其右边线和底边线应与图框线重合。
二. 比例(gb/t14690-93)
比例是图中图形与实物相应要素的线性尺寸之比。需要按比例绘制图样时,应由规定的系列中选取适当的比例。
为了能从图样上得到实物大小的真实感,应尽量采用原值比例(1:1),当机件过大或过小时,可选用表规定的缩小或放大比例绘制,但尺寸标注时必须注实际尺寸。一般来说,绘制同一机件的各个视图应采用相同的比例,并在标题栏中填写。当某个视图需要采用不同比例时,可在视图名称的下方或右侧标注比例:
三. 字体(gb/t14691-93)
图样中书写的字体必须做到:字体工整、笔画清楚、间隔均匀、排列整齐。
字体的高度(用h表示)的公称尺寸系列为1.8,2.5,3.5,5,7,10,14,20mm。字体高度代表字体的号数。
㈠ 汉字
汉字应写成长仿宋体,并应采用国家正式公布推行的简化字。汉字的高度不应小于3.5mm,其字宽一般为字高的2/3。长仿宋体的书写要领是:横平竖直,注意起落,结构匀称,填满方格.
㈡ 数字和字母
数字和字母有直体和斜体两种。一般采用斜体,斜体字字头向右倾斜,与水平线约成75°角。在同一图样上,只允许选用一种形式的字体。
四. 图线(gb/t17450-1998)
㈠ 图线线型及其应用
gb/t17450-1998《技术制图 图线》中规定了15种基本线型,每种基本线型的变形有四种。图线的宽度(用d表示)分为粗线、中粗线、细线三种,其比例关系是4:2:1。机械图样上多采用两种线宽。建筑图样上可以采用三种线宽。所有线型的图线宽度应按图样的类型和尺寸大小在下列数系中选择:0.18,0.25,0.35,0.5,0.7,1,1.4,2mm。宽度为0.18mm的图线在图样复制中往往不清晰,尽量不采用。
目前,在机械图样中仍采用gb4457.4-84中规定的8种线型:粗实线、细实线、波浪线、双折线、虚线、粗点划线、细点划线、双点划线。如表1-3所示。
㈡ 图线的画法
⒈ 同一图样中同类图线的宽度应基本一致,虚线、点画线、双点画线的线段长度和间隔应各自大致相等,在图样中要显得匀称协调。
⒉ 绘制点划线时,首末两端及相交处应是线段而不是短划,超出图形轮廓2~5mm。在较小的图形上绘制点划线和双点划线有困难时,可用细实线代替。
⒊ 虚线与虚线相交,或与其他图线相交时,应以线段相交,当虚线为实线的延长线时,应留有间隙,以示两种不同线型的分界线。
五. 尺寸标注(gb4458.4-84)
㈠ 基本规则
⒈ 图样中的尺寸,以mm为单位时,不需注明计量单位代号或名称。若采用其他单位则必须注明相应计量单位或名称。⒈ 尺寸界线 尺寸界线用细实线绘制,一般是图形的轮廓线、轴线或对称中心线的延长线,超出尺寸线约2~3mm。也可直接用轮廓线、轴线或对称中心线作尺寸界线。尺寸界线一般与尺寸线垂直,必要时允许倾斜。
⒉ 尺寸线 尺寸线用细实线绘制,必须单独画出,不能用其他图线代替,一般也不得与其他图线重合或画在其延长线上。并应尽量避免尺寸线之间及尺寸线与尺寸界线之间相交。尺寸线应与所标注的线段平行,平行标注的各尺寸线的间距要均匀,间隔应大于5mm,同一张图纸的尺寸线间距应相等。
标注角度时,尺寸线应画成圆弧,其圆心是该角的顶点。
⒊ 尺寸线终端 尺寸线终端有两种形式,箭头或细斜线。如图1-9所示。箭头适用于各种类型的图样。当尺寸线终端采用细斜线形式时,尺寸线与尺寸界线必须垂直。同一张图样中,只能采用一种尺寸线终端形式。采用箭头形式时,在位置不够的情况下,允许用圆点或斜线代替。
⒋ 尺寸数字 线性尺寸的数字一般注写在尺寸线上方或尺寸线中断处。尺寸数字不能被任何图线通过,否则应将该图线断开。
尺寸数字前的符号区分不同类型的尺寸:
φ-表示直径 r-表示半径 s-表示球面 t-表示板状零件厚度 □-表示正方形 (或 )-表示锥度 ∠(或 )-表示斜度
㈡ 各类尺寸标注示例
⒈ 线性尺寸的注法 线性尺寸的数字应按图1-11a中所示的方向注写,即以标题栏方向为准,水平方向字头朝上,垂直方向字头朝左,倾斜方向时字头有朝上趋势。








